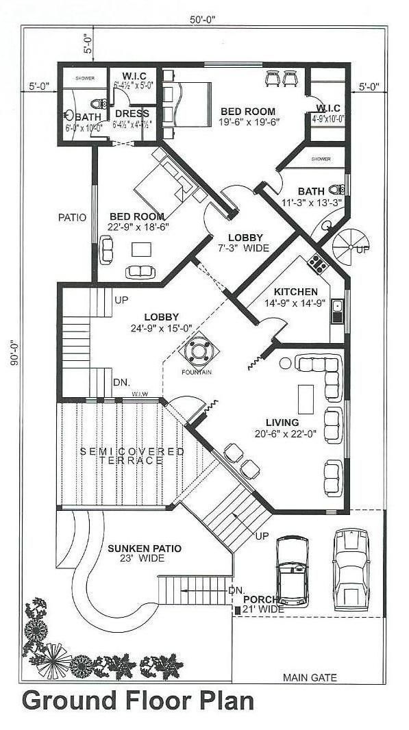
SAHBY Consultants

Architectural Design

HOME – ARCHITECTURAL DESIGN